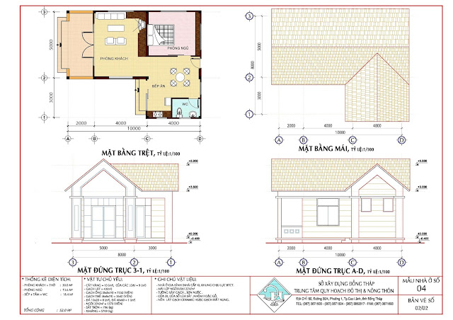
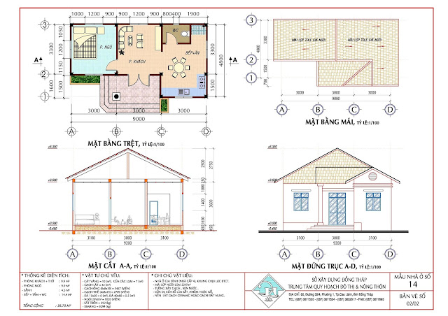
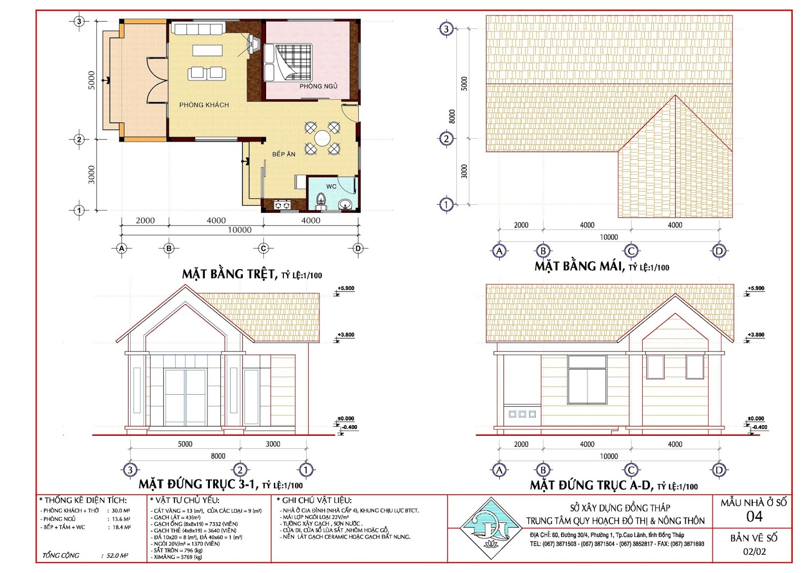
Chia sẽ 25 mẫu nhà cấp 4 nông thôn đẹp, các bạn cần chi tiết để triển khai thi công comment để lại email nhe. (mẫu thiết kế do Trung tâm quy hoạch đô thị và nông thông - Sở XD Đồng Tháp thiết kế).
(lick vào hình để xem ảnh lớn hơn)
(lick vào hình để xem ảnh lớn hơn)























