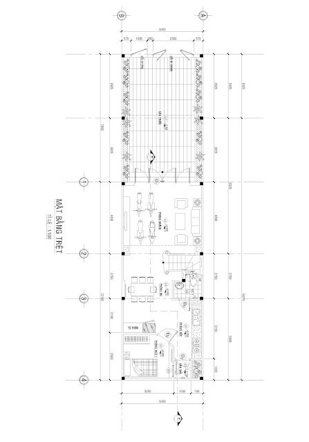
Trang chủbản vẽ mẫu Bản vẽ nhà phố 2 tầng 5x12m Đăng bơiADMIN •tháng 8 16, 2017 0 Bản vẽ mẫu nhà phố 2 tầng trên phần diện tích 20mx5m, xây dựng 5x12,15m. Thiết kế có khoảng sân rộng, hồ sơ bản vẽ do Kts. Trần Văn Tá thiết kế. Các mặt bằng: Thẻ liên kết: bản vẽ mẫu nhà 2 tầng nhà đẹp nhà mẫu nhà phố Facebook Twitter