Thuật phong thủy: Định vị nhà trên một vùng đất
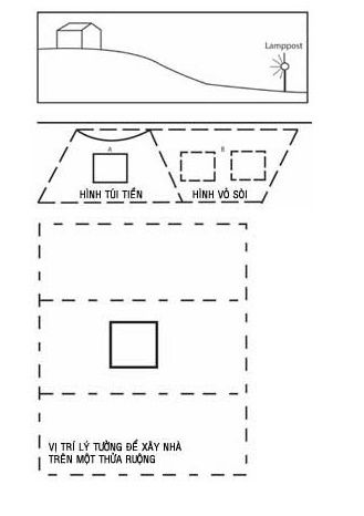
Theo thuật Phong thủy, vị trí của ta trong vũ trụ ảnh hưởng đến ta. Sự liên hệ của một nhà cao tầng với con đường tạo ra nhữ…
Theo thuật Phong thủy, vị trí của ta trong vũ trụ ảnh hưởng đến ta. Sự liên hệ của một nhà cao tầng với con đường tạo ra nhữ…